PROMAGEST Agence
Télécharger la fiche

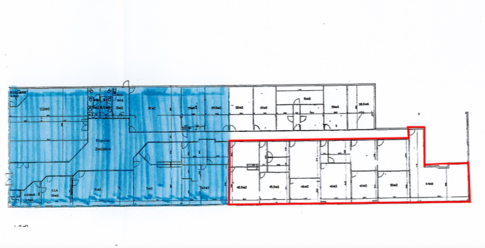
Local commercial 500 m²

Troyes (10000)
280 000 € Référence 12_09_2025

A propos de ce bien

Bureaux situé à Troyes, au 2ème étage d’un immeuble avec accès par escalier et ascenseur. 
Caractéristiques du bien :
Superficie : 500 m²

2ème étage avec ascenseur et escalier

15 places de parking en sous-sol

Proximité immédiate des transports en commun pour un accès facilité

Un emplacement stratégique et fonctionnel pour vos projets professionnels !

Pour plus d’informations ou pour organiser une visite, n’hésitez pas à nous contacter.

Caractéristiques de ce bien

Activités

  • Type de transaction Local commercial

Agencement

  • Superficie m2 500 m²
  • Ascenseur 1

Equipements

  • Chauffage collectif : autre (autre)

Secteur

  • Code postal 10000
  • Ville Troyes

Agencement extérieur

  • Nombre d'étage 2

Calcul des mensualités

* Champs obligatoires

Diagnostics énergétiques

Consommation énergétique
A B C D E F G
Emission de gaz à effet de serre
A B C D E F G
DPE ANCIENNE VERSION

Informations financières

Prix de vente honoraires inclus 280 000 €
Honoraires à la charge acquéreur 7,69 %