PROMAGEST Agence
Télécharger la fiche

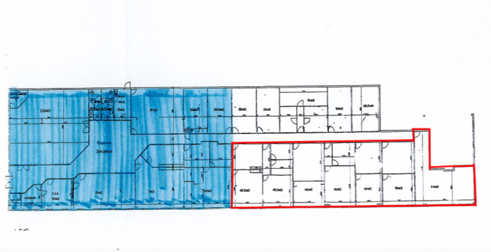
Bureaux 500 m²

Troyes (10000)
4 300 € / mois HT - HC* * Hors charges * HT : Hors Taxes Référence PRO114

A propos de ce bien

À louer : Local de bureaux idéalement situé à Troyes, au 2ème étage d’un immeuble avec accès par escalier et ascenseur. 
Caractéristiques du bien :
Superficie : 500 m²

2ème étage avec ascenseur et escalier

15 places de parking en sous-so

lProximité immédiate des transports en commun pour un accès facilité

Loyer mensuel : 4 300 € HT HC

Taxe foncière à la charge du locataire

Honoraires de l'agence : 30% HT du loyer HT

Un emplacement stratégique et fonctionnel pour vos projets professionnels !
Possibilité d'agrandissement. 
Pour plus d’informations ou pour organiser une visite, n’hésitez pas à nous contacter.

Caractéristiques de ce bien

Activités

  • Type de transaction Bureaux

Agencement

  • Superficie m2 500 m²

Secteur

  • Code postal 10000
  • Ville Troyes

Diagnostics énergétiques

Consommation énergétique
A B C D E F G
Emission de gaz à effet de serre
A B C D E F G
DPE ANCIENNE VERSION

Informations financières

Loyer HT 4 300 € / mois
Honoraires HT charge locataire 18 576 €
Dont état des lieux Non renseigné
Dépot de garantie Non renseigné